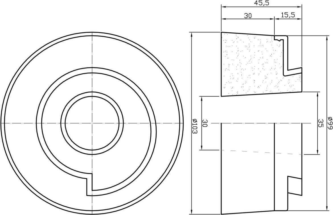
Muela_0840_grueso_100x30_VSH_ Previous item Foto 0840 100x30 VSH Next item 100 x30 vsh No image description ...
Add Comment